Top

WING Sistemi

Büyük açıklıkta ve ekonomik modüler sistemlerin kurulmasına olanak tanıyan düz formda öngerilmeli "I" kestili kirişlerin kolonlara mafsallı olarak bağlanmasıyla oluşturulan yeni bir prefabrike betonarme bina yapım sistemidir.

İtalya'dan transfer edilen sistemde aşık görevi gören, kırık plak formundaki öngermeli "wing" elemanları özel olarak tasarlanmış olup, bu yapı elemanlarıyla çerçeve yönünde 15 metreye kadar açıklıklar geçilebilmektedir.

Genel Teknik Özellikleri

  • 30.00 m.ye kadar hol açıklıkları,
  • 12.00 m. - 15.00 m. çerçeve aralığı,
  • Büyük modülasyonla yapı içinde her iki yönde de makine yerleşimi ve holler arası rahat araç sirkülasyonu,
  • İstenilen değerde çatı eğimini yapma imkanı,
  • Bina içerisinde yağmur drenaj sisteminin olmaması veya minimumda olması,
  • Prefabrike ara kat uygulaması,
  • Estetik ve ekonomik prefabrike beton çatı uygulaması,
  • Prefabrike beton çatı uygulaması,
  • Alternatifli cephe uygulamaları,
  • Prefabrike b.a. şed / çift taraflı fener uygulamaları

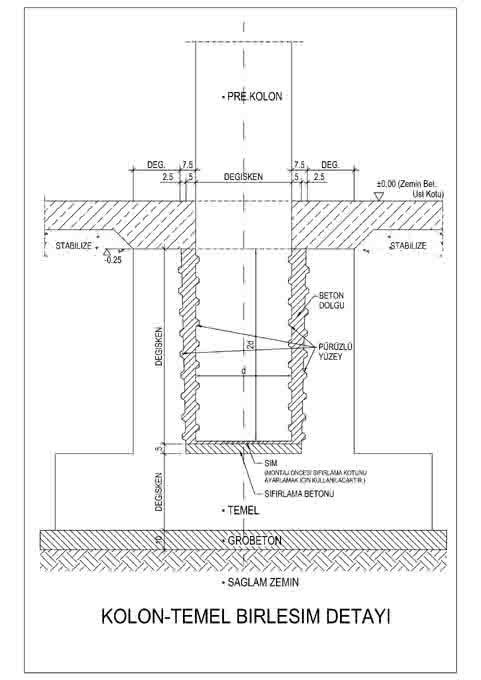
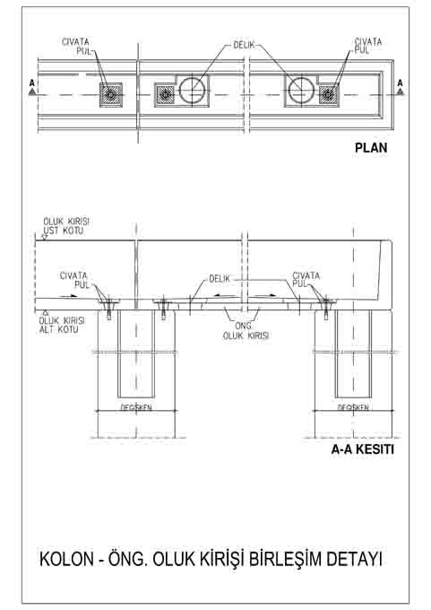
Sistem Detayları

Sistem DetaylarıSistem DetaylarıSistem DetaylarıSistem DetaylarıSistem DetaylarıSistem Detayları

Uygulama Örnekleri

Uygulama ÖrnekleriUygulama ÖrnekleriUygulama ÖrnekleriUygulama ÖrnekleriUygulama Örnekleri