Top

KK Sistemi

Ana çerçevesi trapez formda "I" kesitli kirişlerin, kolonlara mafsallı olarak bağlanmasıyla oluşturulan bir prefabrike betonarme bina yapım sistemidir.

Ağır proje yükleri olan, yüksek tonajlı kren taşıma kapasiteli binaların strüktürü için uygun bir sistemdir.

Çatı eğimi standart % 12 olarak uygulanmaktadır.

Proje yüklerine ve yapıda istenen açıklıklara bağlı olarak, ihtiyaç duyulması halinde gerekli yapısal elemanlarda ayrıca öngerilme teknolojisi kullanılır.

Genel Teknik Özellikleri

  • 10.00 m. - 30.00 m. arasında hol açıklıkları,
  • 5.00 m. - 10.00 m. çerçeve aralığı,
  • Prefabrike ara kat uygulaması,
  • Prefabrike beton çatı uygulaması,
  • Alternatifli cephe uygulamaları,
  • Prefabrike b.a. şed / çift taraflı fener uygulamaları

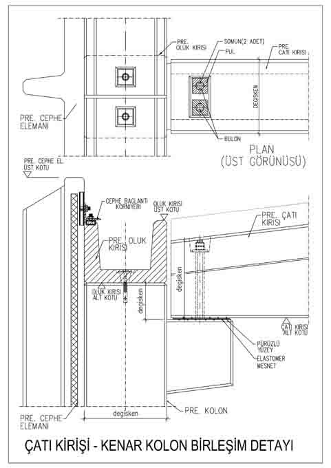
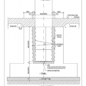
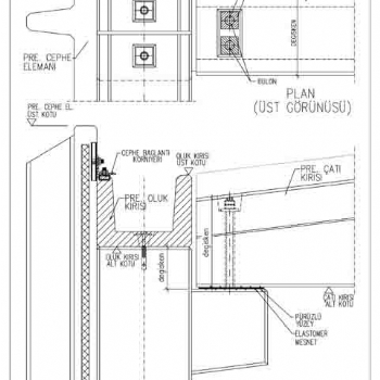
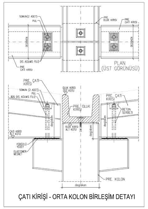
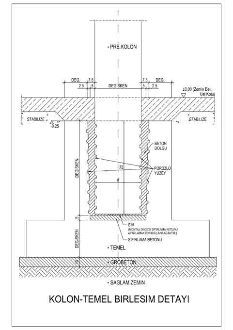
Sistem Detayları

Sistem DetaylarıSistem DetaylarıSistem DetaylarıSistem DetaylarıSistem DetaylarıSistem Detayları

Uygulama Örnekleri

Uygulama ÖrnekleriUygulama ÖrnekleriUygulama ÖrnekleriUygulama ÖrnekleriUygulama Örnekleri